• Ville

    Le Mans

  • Client

    Le Mans Métropole

  • Date

    Depuis 2005

  • Terrain

    10 lots en cours de commercialisation

  • Budget

    Budget de l’opération : 15,4 M€ HT

ZAC DE LA CARTOUCHERIE

Zac de la Cartoucherie : 10 parcelles prêtes à bâtir - Cénovia Cités
Zac de la Cartoucherie : 10 parcelles prêtes à bâtir - Cénovia Cités
Terrain à acheter au Mans : ZAC de la Cartoucherie - Cénovia Cités
Contactez-nous

Programme

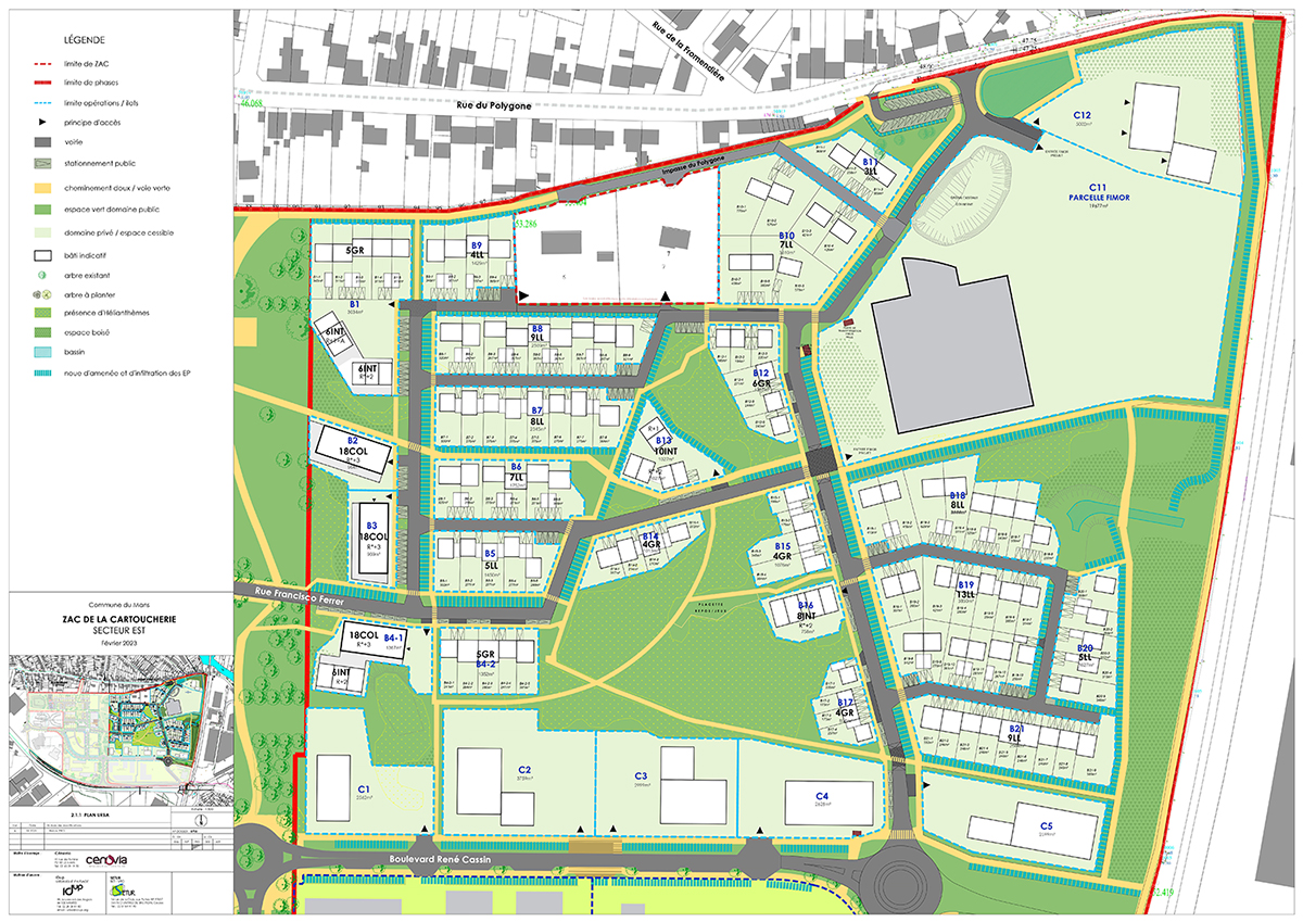
La ZAC de la Cartoucherie est située à proximité du Centre-Ville et de la gare sud, facilement accessible par le boulevard Estiennes d’Orves et la rue du Polygone. Ce projet ambitieux propose un aménagement de qualité qui combine habitat, activités et espaces publics dans un environnement respectueux des principes du développement durable.

Le projet vise à créer une urbanisation avec un front bâti d’activités le long de la rocade, servant d’écran phonique et visuel pour protéger la partie résidentielle du quartier. Une grande coulée verte, un parc urbain de près de 3 ha, est conservée, préservant la forêt de pins présente sur le site.

L’aménagement s’intègre harmonieusement au tissu urbain existant, avec des liaisons douces, telles que des cheminements piétonniers et cyclables, permettant de relier facilement le quartier aux environs. Il adopte une approche environnementale de l’urbanisme (AEU), avec une gestion innovante des eaux pluviales (infiltration, noues, bassins paysagés), et une gestion respectueuse des espaces verts, notamment par le maintien d’une espèce végétale protégée sur site et l’absence de traitements phytosanitaires ou d’arrosage.

L’opération met également en avant la mixité des formes urbaines, avec un aménagement qui comprend des logements diversifiés, allant des immeubles collectifs aux maisons individuelles, ainsi que des parcelles d’activités, dont deux villages d’entreprises. Cette démarche permet de concilier vie active et résidentielle, tout en favorisant la durabilité et la qualité de vie.

Programme global du projet :

  • Logements : collectifs/ individuels / intermédiaires
  • Activités : accueil d’entreprises dont deux villages d’entreprises
  • Des espaces verts et des cheminements, se décomposant en :
    • Un grand espace vert boisé, conservé au centre de la ZAC (le Parc Malala),
    • Une zone de protection de l’hélianthème, aménagée sommairement en parc (chemin et lande conservés, panneaux pédagogiques)
  • Des liaisons piétonnes paysagées desservant toute la ZAC, avec une aire de jeux dans le parc Malala
  • Des pistes cyclables connectées avec les itinéraires passant à proximité de la ZAC (vers Pontlieue, le Gué de Maulny et la gare)
  • Des voies secondaires traitées en zone de rencontre

Budget de l’opération : 15,5 M€ HT

Surface de l’opération : 27 Ha dont 8 Ha dédiées à l’implantation d’entreprises

Concepteur : Groupement Id UP/SETUR/ + THEMA (BET environnemental)

 

Contactez-nous

Nouvelle commercialisation !

Nouvelle commercialisation de 10 Lots libres de constructeurs en cours : 

Découvrez dès maintenant nos 10 terrains à bâtir, libres de constructeur, d’une superficie allant de 240 m² à 770 m², situés dans la ZAC de la Cartoucherie au Mans. Profitez d’un cadre de vie à la fois urbain et naturel, en plein cœur du Mans.

Localisation